Willkommen bei Schülke Immobilien!
seit über 20 Jahren ihr zuverlässiger Partner im Immobilienvertrieb
0 slides available for this slider.
Immobilien Highlights bei Schülke Immobilien!
Exposé GwM0047
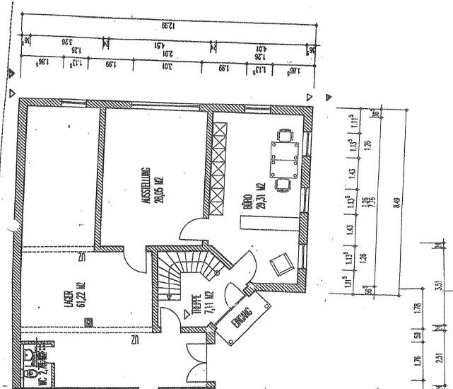
Repräsentative und vielseitig nutzbare Gewerberäume in Wang
- Objekt-Nr:GwM0047
- Immobilienart:Büro / Praxis
- Vermarktungsart:Miete
- Adresse:85368 Moosburg
- Region:Deutschland
